Home
Featured Projects
ARCHITECTURAL
FABRICATION
Home
Featured Projects
ARCHITECTURAL
FABRICATION
SKETCHUP
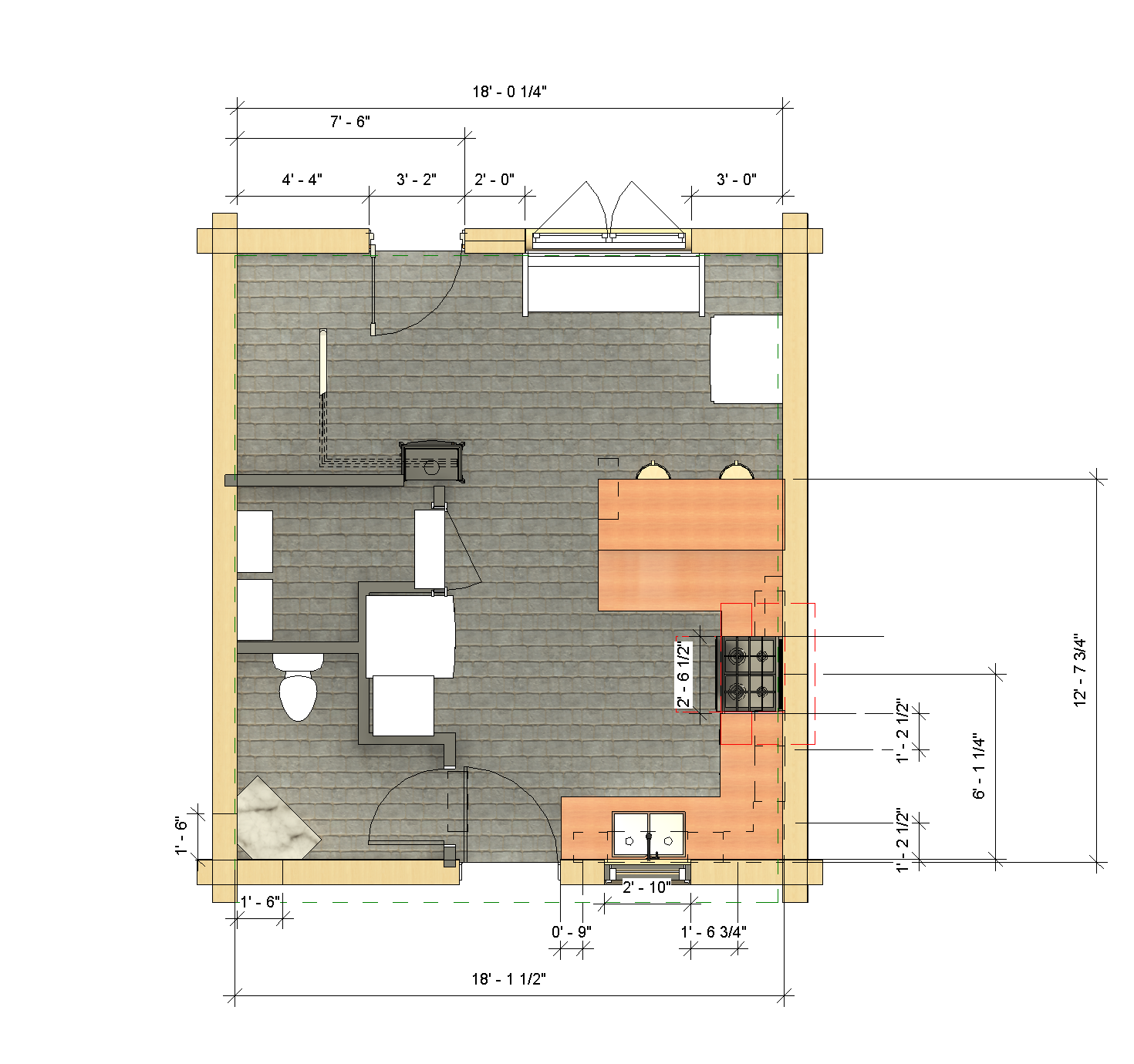
OBJECTIVE: Design a floorplan to maximize space forĀ an already exisiting 20x22 cabin kit while maintaining rustic feel.
You may also like
Urban Farmhouse
2024
S K E T C H E S
2024
B I O P H I L I C C O L L E G E
2024
Tiny Home "Addition"
2023
Custom Shop
2025
W A R E H O U S E
2024
↑
Back to Top