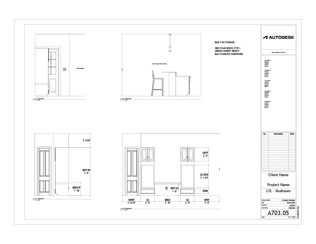
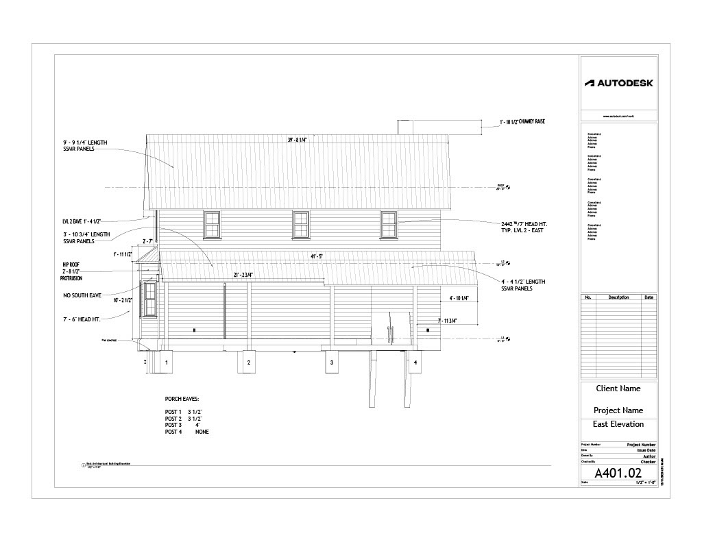
U R B A N F A R M H O U S E
AUTOCAD | REVIT | ENSCAPE | BLUEBEAM
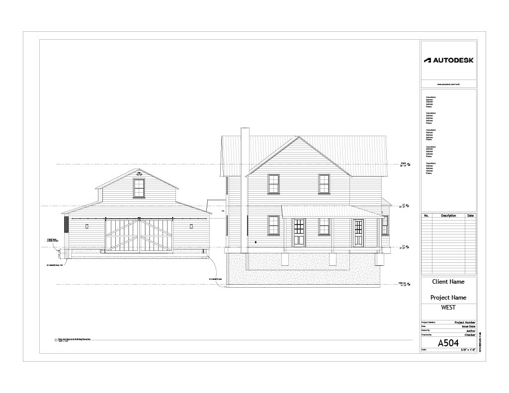
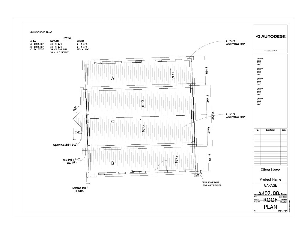
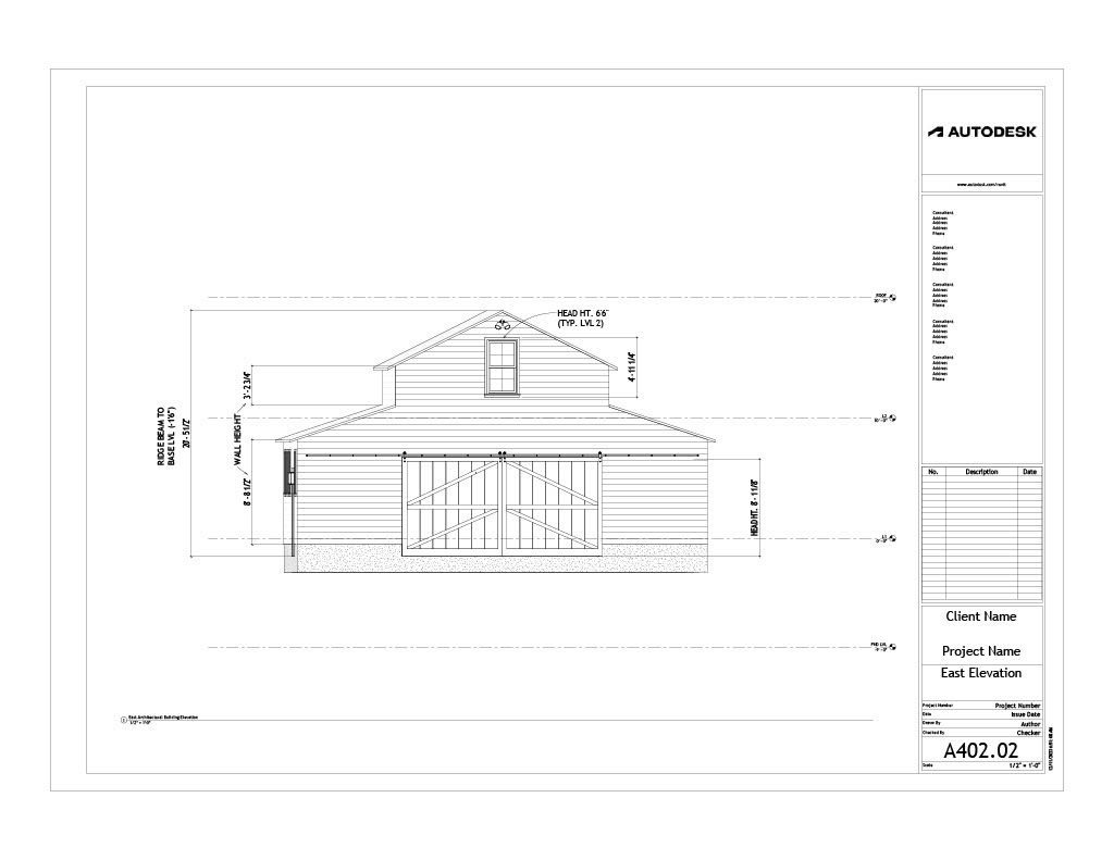
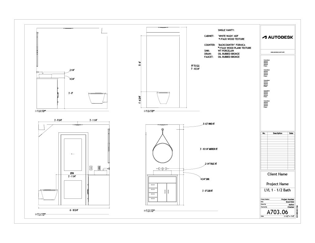
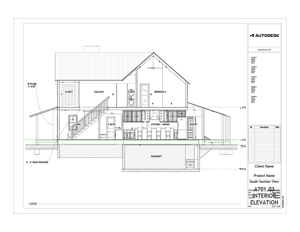
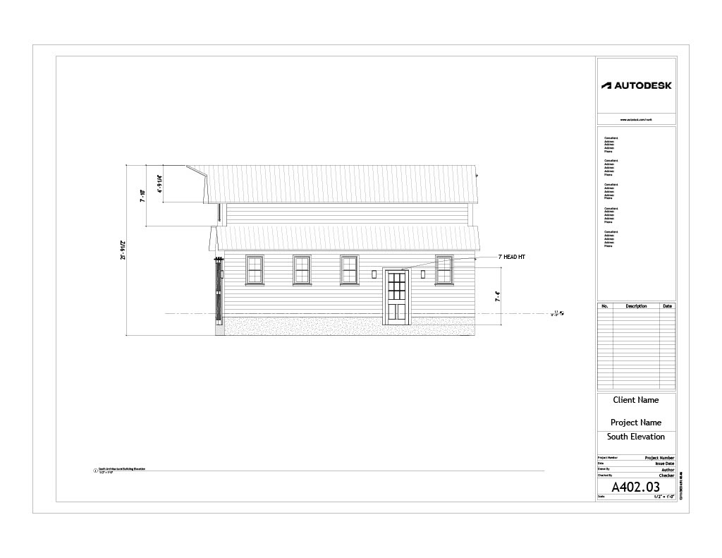
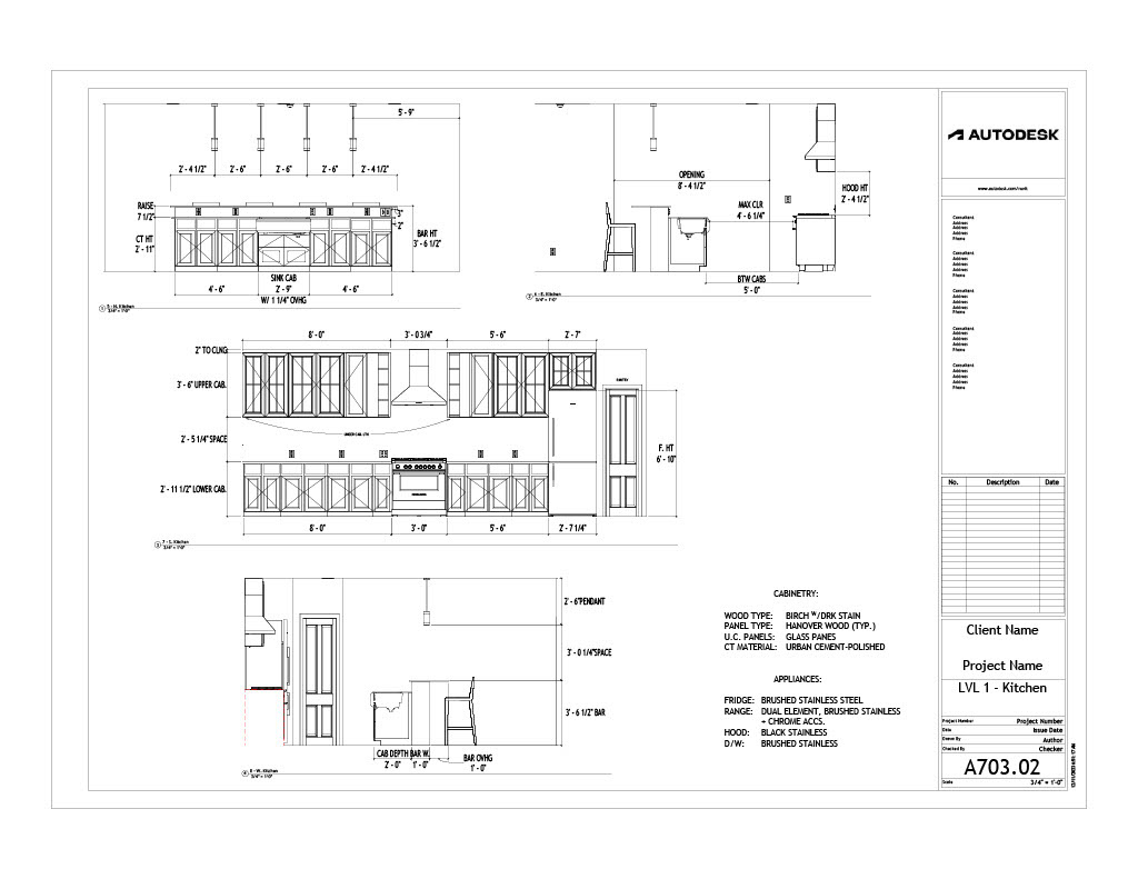
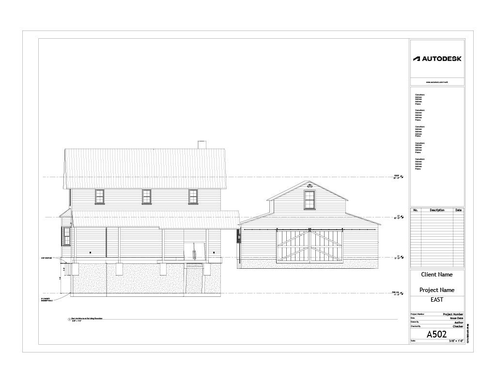
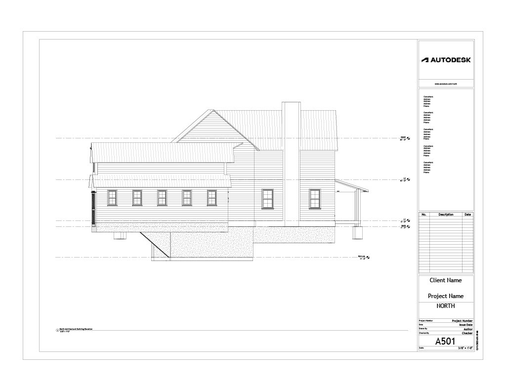
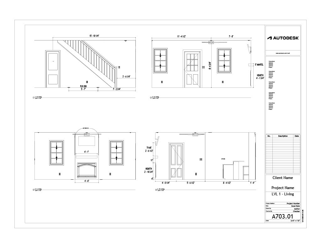
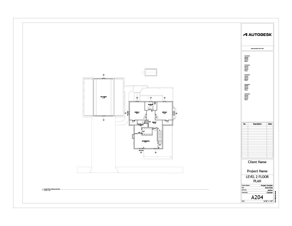
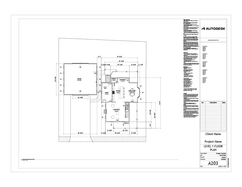
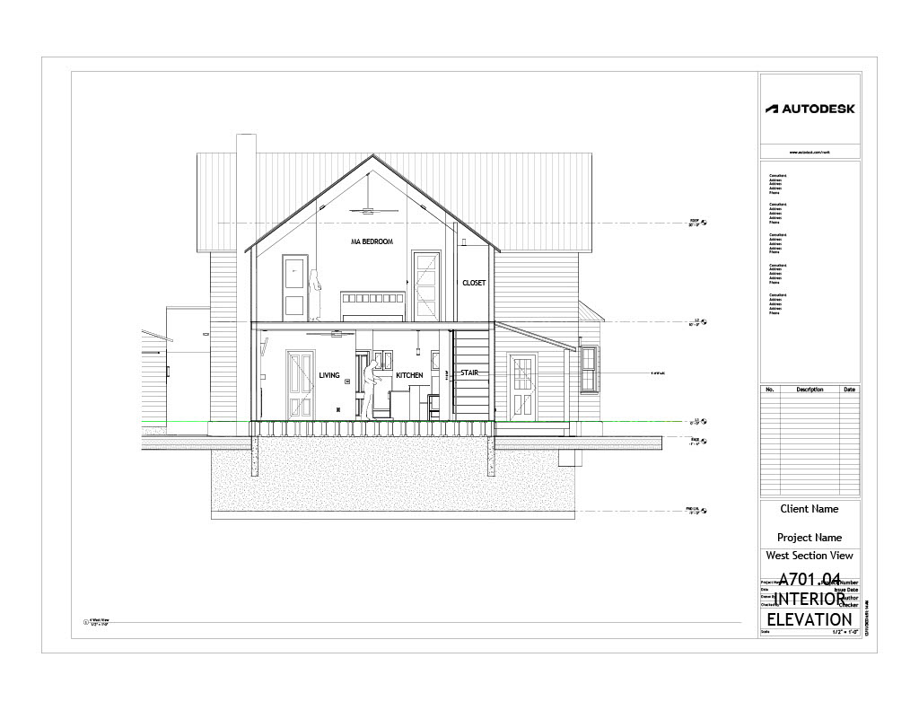
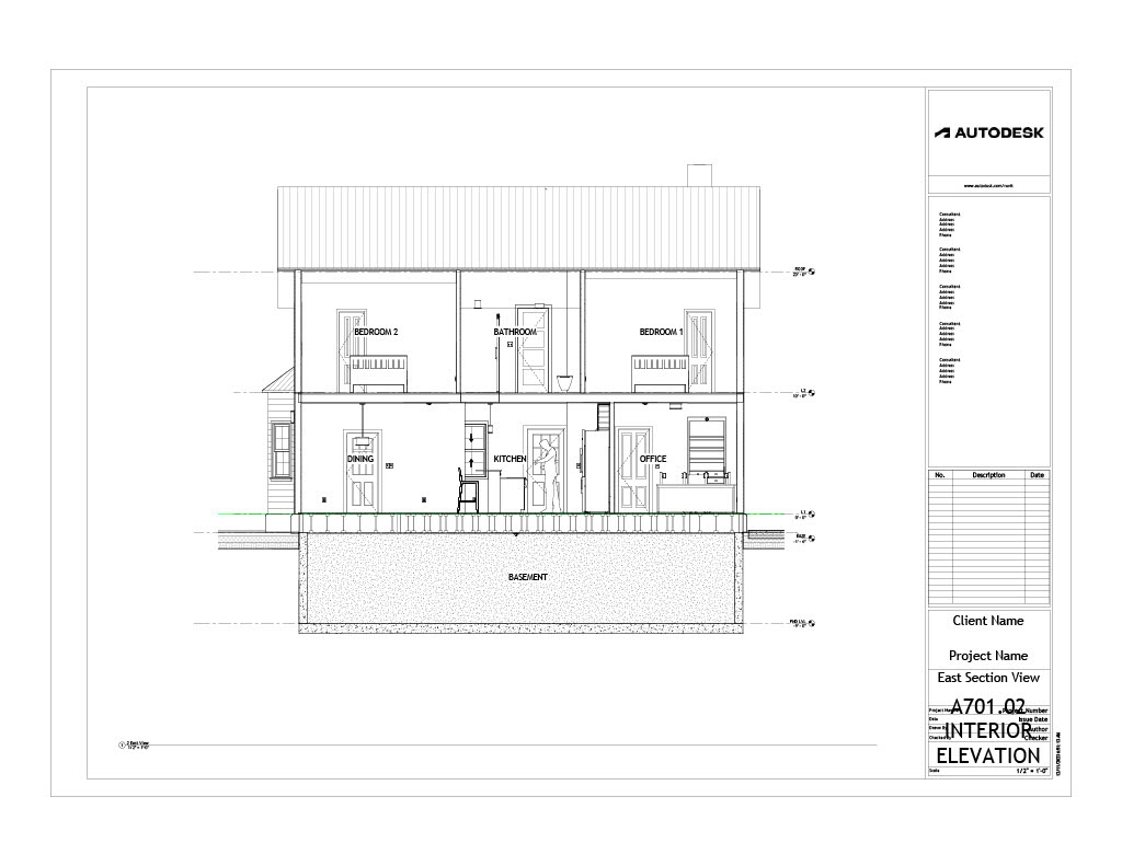
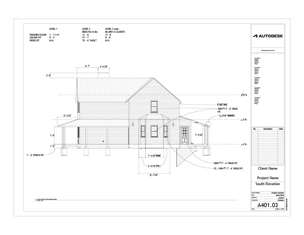
OBJECTIVE: Choose an architectural style. Create a 3br/2ba 2-story single-family home with a garage. Fulfill client's wishes to have designated office space, hobbyist brewery space, and greenhouse
- Must be in compliance with Montana Building Code and IRC regulations
- Footprint must be a minimum of 1200sf and abide by utility/property setbacks
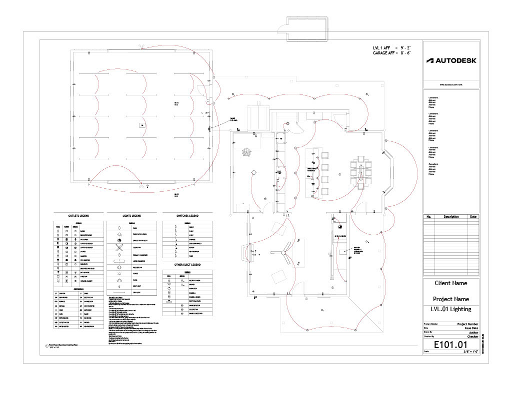
- Include electrical plans, utility locations, and corner bearings
- Meet periodically with client for markups and modifications
- Footprint must be a minimum of 1200sf and abide by utility/property setbacks
- Include electrical plans, utility locations, and corner bearings
- Meet periodically with client for markups and modifications